
-
Optimalizované
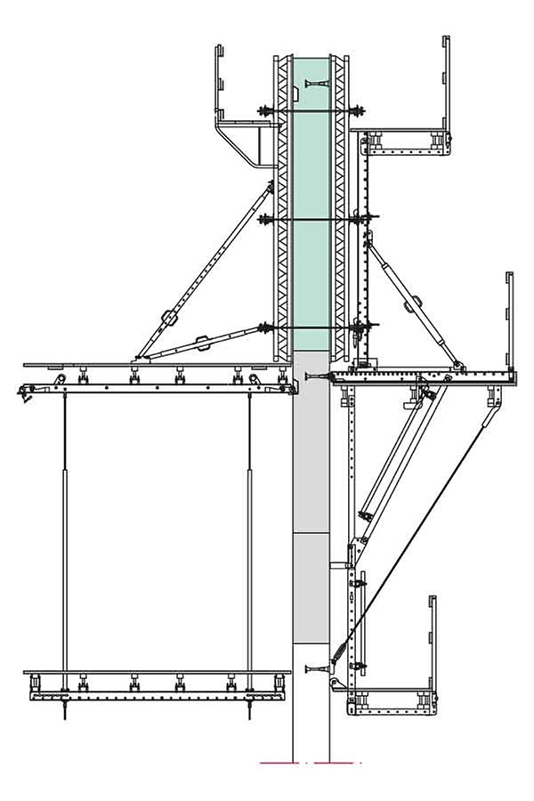
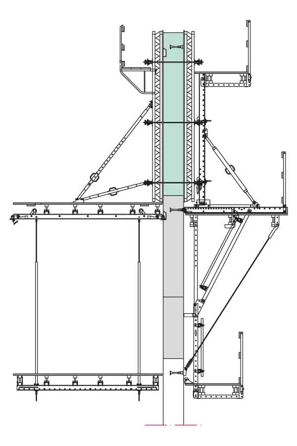
Mimořádně únosné konzoly umožňují realizaci rozměrných překládaných sestav s maximálním vytížením kotev.
-
Promyšlené
Použití stejného bednění a dílů pro zárodek a následné standardní záběry.
-
Adaptabilní
Lávky s možností naklonění podlah zajišťují bezpečnost na pracovištích i komunikacích.
Varianty
SCS 190
Šířka konzoly je cca 1,90 m s upínací jednotkou pro naklonění bednění.
SCS 250
Šířka konzoly je cca 2,50 m s možností odsunutí bednění na vozíku (podle systému bednění až o 63 cm).
Použití
Technický popis
použití
jako podpěrné lešení k podepření nekotveného, jednostranného stěnového bednění dle DIN EN 12812; jeřábem překládané sestavy vytvořené z lávky a stěnového nosníkového bednění VARIO GT 24 (standardní použití)
možnosti nasazení
optimalizováno pro nasazení ve svislé poloze s výškou betonáže 3,00 m a nasazení v nakloněné poloze v úhlu 30° s výškou betonáže 2,50 m; možnost doplnění následnou lávkou adaptabilní samostatná pracovní lávka pro nasazení na nakloněných stěnách; betonářskou a následnou lávku lze naklonit o ±15˚ a ±30˚; základní opěrný rám se sklápěcím nosníkem, vřetenem a přídavnou závorou pro první betonářský záběr a ukotvením do základů diagonálními kotvami
Máte otázky k našemu systému?
Kontaktujte nás, rádi vám pomůžeme.